WELCOME
SELECTED WORKS PORTFOLIO PDF
ARCHITECTURE WORK
SOARING TO SOLACE
IMMERSIVE ARCHITECTURE
DIGITAL CRAFTING
SPACE OUT SPACE
AMBIENTI URBANI
NJA MATERIALS LAB
FAR ROCKAWAY COMMUNITY CENTER
VINEGAR HILL MICRO-HOUSING
INTERNSHIP WORK
STATION INN
SAG HARBOR
86 RIVERSIDE DRIVE
5 HOWARD STREET
35 PROSPECT PARK WEST
UX/UI DESIGN
THE CHOPSTICK SHOP
ABOUT ME
Contact
Aimee Beattie
WELCOME
SELECTED WORKS PORTFOLIO PDF
ARCHITECTURE WORK
SOARING TO SOLACE
IMMERSIVE ARCHITECTURE
DIGITAL CRAFTING
SPACE OUT SPACE
AMBIENTI URBANI
NJA MATERIALS LAB
FAR ROCKAWAY COMMUNITY CENTER
VINEGAR HILL MICRO-HOUSING
INTERNSHIP WORK
STATION INN
SAG HARBOR
86 RIVERSIDE DRIVE
5 HOWARD STREET
35 PROSPECT PARK WEST
UX/UI DESIGN
THE CHOPSTICK SHOP
ABOUT ME
Contact
SAG HARBOR
O'Neil Langan Architects | 2024
ROOF OPTION 01 ELEVATION
ROOF OPTION 01 MASSING MODEL STUDY
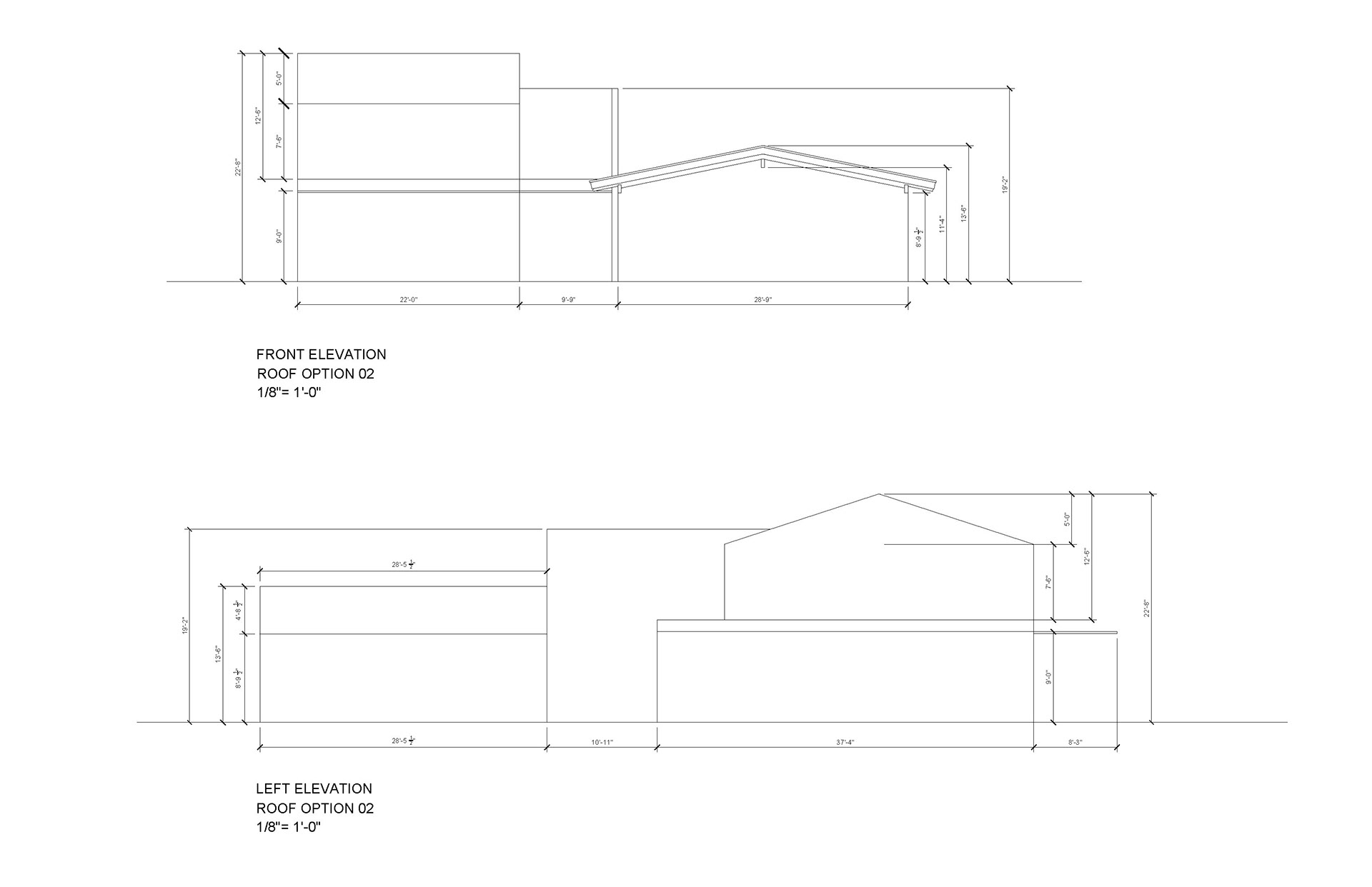
ROOF OPTION 02 ELEVATIONS
ROOF OPTION 02 MASSING MODEL STUDY
↑
Back to Top